Description
- Four-Bedroom
- Family Home
- Detached
- Integrated Garage
- Conservatory
- Sough-After Location
- Fantastic Plot
- Council Tax Band: E
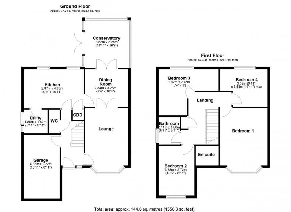
This substantial 4 bedroom family home benefits from an ideal location and is tucked neatly within a cul-de-sac setting. The property benefits from driveway parking leading to an integrated garage and a rear enclosed garden and comprises entrance hall, lounge, dining kitchen, dining room, conservatory, utility room, downstairs W.C, 4 bedrooms, master with en-suite and family bathroom.
Having a part glazed entrance door opening into the entrance hall. Having laminate to the floor, doors to the lounge, dining kitchen, W.C and garage and stairs to the first floor.
14' (excluding bay) x 10' 10" (4.27m x 3.30m) approx. A spacious lounge having a bay window to the front of the property and part glazed french doors leading to the dining room.
10' 10" x 9' (3.30m x 2.74m) approx. Benefiting from access from both the kitchen and lounge and having fully glazed french doors leading to the conservatory.
10' 4" x 9' 7" (3.15m x 2.92m) approx. Providing additional living space, having laminate to the floor and french doors leading to the garden.
14' 4" x 8' 4" (4.37m x 2.54m) approx. A spacious family dining kitchen having a range of modern base and wall units with part tiled walls and tiles to the floor. Having an integrated oven and hob with extractor fan over, fridge and freezer. Having 2 upvc double glazed windows with and outlook of the rear garden, a deep storage cupboard and door leading to the utility room.
5' 2" x 5' 1" (1.57m x 1.55m) approx. Having coordinating units, wall tiles and floor tiles to those in the kitchen with plumbing for a washing machine and external access door leading out to the side of the property.
5' 3" x 2' 8" (1.60m x 0.81m) approx. Having a white 2 piece suite comprising wash hand basin and low level W.C with tiled splash back and laminate to the floor.
Leading to the bedrooms and bathroom and benefiting from a storage cupboard.
13' 8" x 11' 1" (4.17m x 3.38m) approx. A spacious master bedroom benefiting from modern fitted wardrobes and having a bay window to the front of the property.
5' 8" (reducing to 2' 9") x 5' 6" (reducing to 2' 9") (1.73m x 1.68m) approx. Having a white 2 piece suite comprising step in shower cubicle, low level W.C and pedestal wash hand basin with part tiled walls and an obscured double glazed window.
11' 1" x 9' 5" (3.38m x 2.87m) approx. Having a window to the rear of the property.
14' 4" (reducing to 7' 6") x 11' 1" (reducing to 6') (4.37m x 3.38m) approx. A useful 'L' shaped bedroom, particularly for children as it provides an area for a bed and an area for play. Having a window with an outlook to the rear of the property.
12' x 8' 5" (3.66m x 2.57m) approx. Being located at the front of the property and having a double glazed window.
6' 1" x 5' 4" (1.85m x 1.63m) approx. Having a white 3 piece suite comprising panelled bath with shower over, pedestal wash hand basin and low level W.C with part tiled walls and an obscured window.
Having an open plan lawned garden to the front of the property with driveway parking and paved walk ways leading to the front entrance door and gated access to the rear garden.
Having a gated access from the front of the property leading down a paved walkway and opening into the rear enclosed lawned garden with fence and hedge boundaries.
Having driveway parking leading to a single integral garage.
While every reasonable effort is made to ensure the accuracy of descriptions and content, we should make you aware of the following guidance or limitations.
Agent notes
(1) MONEY LAUNDERING REGULATIONS - prospective tenants will be asked to produce identification documentation during the referencing process and we would ask for your co-operation in order that there will be no delay in agreeing a tenancy.
(2) These particulars do not constitute part or all of an offer or contract.
(3) The text, photographs and plans are for guidance only and are not necessarily comprehensive.
(4) Measurements: These approximate room sizes are only intended as general guidance. You must verify the dimensions carefully to satisfy yourself of their accuracy.
(5) You should make your own enquiries regarding the property, particularly in respect of furnishings to be included/excluded and what parking facilities are available.
(6) Before you enter into any tenancy for one of the advertised properties, the condition and contents of the property will normally be set out in a tenancy agreement and inventory. Please make sure you carefully read and agree with the tenancy agreement and any inventory provided before signing these documents.
Floorplan

To discuss this property call us:
Market your property
with Cornerstone Estate Agents
Book a market appraisal for your property today. Our virtual options are still available if you prefer.
Material Information
- Council Tax Band: E
- All Others: Ask Agent