Description
- Newly converted barn
- Private serene location
- Stunning panoramic views
- High specification
- RENT £2,200
- BOND £2,538
- Council Tax Band: F
- Newly converted barn
- Private serene location
- Stunning panoramic views
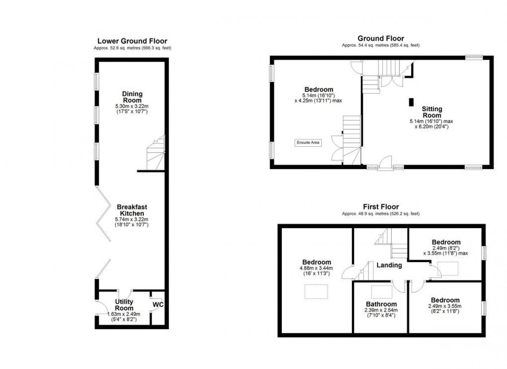
The current owners converted the old barn in 2021 to create an enticing family home with centuries old features at perfect harmony with the contemporary interior design. Thought to date back to the 1700's the barn is steeped in history, with exposed Yorkshire gritstone walls and galleon ship beams on display which date back to the 1600's.
The main house has a decadent interior with an elegant sitting room, engineered oak flooring, a raised log burning stove which sits on a contemporary stone hearth. The spacious, open plan dining kitchen has solid oak work surfaces and four pane aluminium bi-folding doors which open on to the delightful south facing terrace and garden.
The indulgent master bedroom has a double ended roll top slipper bath, in addition it has large built in rustic storage cupboards. As you continue up through the house, there are three additional double bedrooms which are adjacent to the luxury house bathroom with corner bath and spacious separate shower area.
The newly converted barn is well insulated, has ceramic tiled underfloor heating in the main dining, kitchen, utility and downstairs WC. The property has three phase electric power with central heating and mains water, mains drainage in addition to fibre optic broadband and an electric car charging point. The staircases throughout the property have solid oak newel posts and handrails, with modern glass panelling and fashionable carpeted stair runners. The property has solid oak doors throughout. Four large sky light windows allow natural light to flow through the house.
Externally there is driveway parking for four cars and south facing mature gardens that are a landscaped delight, with sweeping lawns, an extensive stone flagged entertaining area and alfresco dining terrace. A curious path leads to a separate garden area covered hot tub.
Enhancing the location, the property is within proximity to the vibrant market town of Hebden Bridge with its fashionable high end bars, boutiques, bistros and the numerous cultural events that the town hosts. In addition, the property's position is a short drive to the neighbouring town of Todmorden. Both local towns have excellent Trans Pennine rail links, with Leeds and Manchester. There are exquisite woodland and hillside walks in each direction from the property, including the Pennine Bridleway on your doorstep.
Blackshaw Head is a welcoming community with an excellent traditional pub, lovely local primary school, a play group, Chapel and a variety seasonal events for you to enjoy.
COUNCIL TAX F
WHAT3WORDS ///orchids.award.lends
AGENT NOTES 1.MONEY LAUNDERING REGULATIONS: Intending purchasers will be asked to produce identification documentation at a later stage and we would ask for your co-operation in order that there will be no delay in agreeing the sale.
2. General: While we endeavour to make our sales particulars fair, accurate and reliable, they are only a general guide to the property and, accordingly, if there is any point which is of particular importance to you, please contact the office and we will be pleased to check the position for you, especially if you are contemplating travelling some distance to view the property.
3. The measurements indicated are supplied for guidance only and as such must be considered incorrect.
4. Services: Please note we have not tested the services or any of the equipment or appliances in this property, accordingly we strongly advise prospective buyers to commission their own survey or service reports before finalising their offer to purchase.
5. THESE PARTICULARS ARE ISSUED IN GOOD FAITH BUT DO NOT CONSTITUTE REPRESENTATIONS OF FACT OR FORM PART OF ANY OFFER OR CONTRACT. THE MATTERS REFERRED TO IN THESE PARTICULARS SHOULD BE INDEPENDENTLY VERIFIED BY PROSPECTIVE BUYERS OR TENANTS. NEITHER YORKSHIRES FINEST LIMITED NOR ANY OF ITS EMPLOYEES HAS ANY AUTHORITY TO MAKE OR GIVE ANY REPRESENTATION OR WARRANTY WHATEVER IN RELATION TO THIS PROPERTY.
Floorplan

To discuss this property call us:
Market your property
with Cornerstone Estate Agents
Book a market appraisal for your property today. Our virtual options are still available if you prefer.
Material Information
- Council Tax Band: F
- All Others: Ask Agent