4 bed Farm House for Sale
Elm Cottage, Cow Close Lane, Wyke, West Yorkshire
Offers In Region Of: £700,000 FreeholdDescription
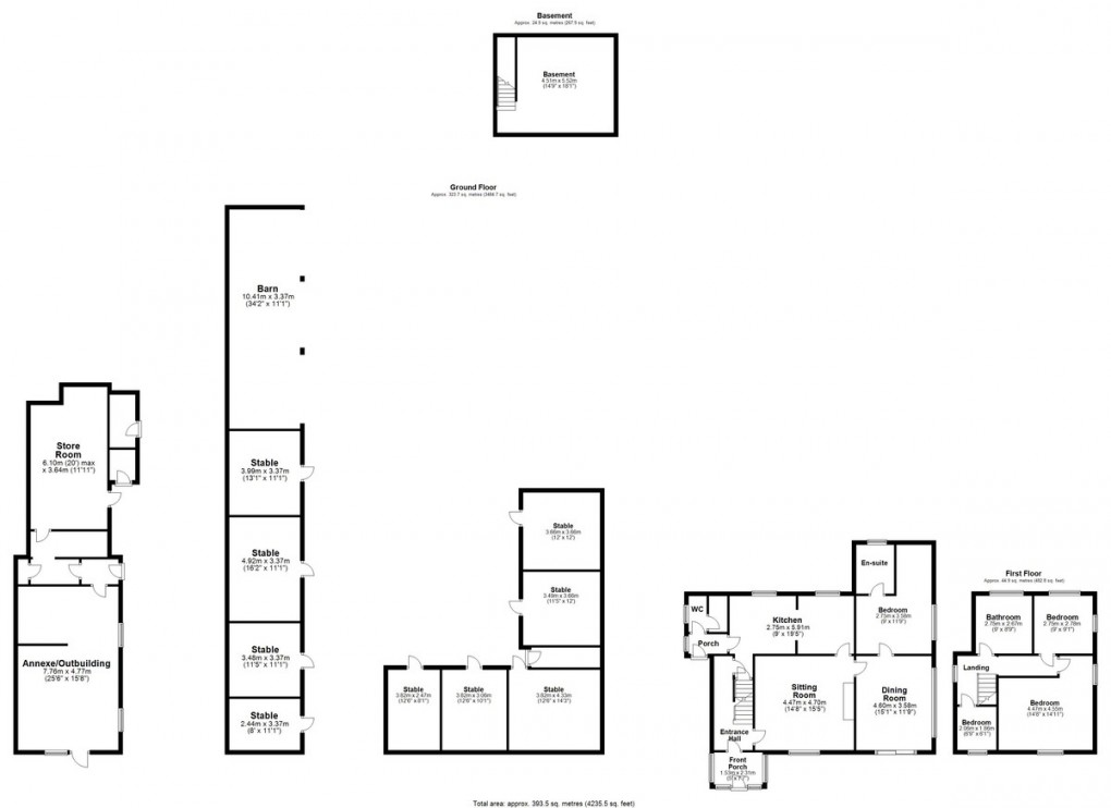
Tucked away at the end of a long private lane behind a secure gated entrance is this most appealing detached farmhouse set in over two acres of land with large outbuilding / annexe in addition to numerous stables with field shelter.
The location is most enviable with the benefit of rural tranquillity, surrounded by open countryside also with delightful far reaching views and having no passing traffic. Despite its rural charm it is only a few minutes drive from both the M62 and M606 motorways.
The farmhouse is ready to move into but may benefit from a modernisation programme and has potential to extend to create a stunning family home. The large outbuilding which is of substantial construction has scope, subject to planning, to convert to a cottage bungalow for dependant relatives, used as a lucrative holiday let or occupy for business use and or garaging of vehicles.
The lush grazing land is neatly divided into paddocks and has two separate blocks of detached stables. The one closer to the house is of timber construction consisting of four stables, has a hardstanding area and a large field shelter. The stable block to the corner of the land is of substantial breeze block construction and consists of five stables with tack room and hardstanding area.
The farmhouse itself offers a double bedroom to the ground floor with ensuite wet room shower room, traditional farmhouse kitchen, sitting room, garden room/dining room and three bedrooms to the first floor with a large luxury house bathroom which has a jacuzzi spa bath and separate spa shower capsule with body jets. There are formal gardens around the property with a charming alfresco dining terrace and an abundance of hardstanding parking for numerous vehicles.
WHAT3WORDS ///having.worker.faded
AGENT NOTES 1.MONEY LAUNDERING REGULATIONS: Intending purchasers will be asked to produce identification documentation at a later stage and we would ask for your co-operation in order that there will be no delay in agreeing the sale.
2. General: While we endeavour to make our sales particulars fair, accurate and reliable, they are only a general guide to the property and, accordingly, if there is any point which is of particular importance to you, please contact the office and we will be pleased to check the position for you, especially if you are contemplating travelling some distance to view the property.
3. The measurements indicated are supplied for guidance only and as such must be considered incorrect.
4. Services: Please note we have not tested the services or any of the equipment or appliances in this property, accordingly we strongly advise prospective buyers to commission their own survey or service reports before finalising their offer to purchase.
5. THESE PARTICULARS ARE ISSUED IN GOOD FAITH BUT DO NOT CONSTITUTE REPRESENTATIONS OF FACT OR FORM PART OF ANY OFFER OR CONTRACT. THE MATTERS REFERRED TO IN THESE PARTICULARS SHOULD BE INDEPENDENTLY VERIFIED BY PROSPECTIVE BUYERS OR TENANTS. NEITHER YORKSHIRES FINEST LIMITED NOR ANY OF ITS EMPLOYEES HAS ANY AUTHORITY TO MAKE OR GIVE ANY REPRESENTATION OR WARRANTY WHATEVER IN RELATION TO THIS PROPERTY.
The location is most enviable with the benefit of rural tranquillity, surrounded by open countryside also with delightful far reaching views and having no passing traffic. Despite its rural charm it is only a few minutes drive from both the M62 and M606 motorways.
The farmhouse is ready to move into but may benefit from a modernisation programme and has potential to extend to create a stunning family home. The large outbuilding which is of substantial construction has scope, subject to planning, to convert to a cottage bungalow for dependant relatives, used as a lucrative holiday let or occupy for business use and or garaging of vehicles.
The lush grazing land is neatly divided into paddocks and has two separate blocks of detached stables. The one closer to the house is of timber construction consisting of four stables, has a hardstanding area and a large field shelter. The stable block to the corner of the land is of substantial breeze block construction and consists of five stables with tack room and hardstanding area.
The farmhouse itself offers a double bedroom to the ground floor with ensuite wet room shower room, traditional farmhouse kitchen, sitting room, garden room/dining room and three bedrooms to the first floor with a large luxury house bathroom which has a jacuzzi spa bath and separate spa shower capsule with body jets. There are formal gardens around the property with a charming alfresco dining terrace and an abundance of hardstanding parking for numerous vehicles.
WHAT3WORDS ///having.worker.faded
AGENT NOTES 1.MONEY LAUNDERING REGULATIONS: Intending purchasers will be asked to produce identification documentation at a later stage and we would ask for your co-operation in order that there will be no delay in agreeing the sale.
2. General: While we endeavour to make our sales particulars fair, accurate and reliable, they are only a general guide to the property and, accordingly, if there is any point which is of particular importance to you, please contact the office and we will be pleased to check the position for you, especially if you are contemplating travelling some distance to view the property.
3. The measurements indicated are supplied for guidance only and as such must be considered incorrect.
4. Services: Please note we have not tested the services or any of the equipment or appliances in this property, accordingly we strongly advise prospective buyers to commission their own survey or service reports before finalising their offer to purchase.
5. THESE PARTICULARS ARE ISSUED IN GOOD FAITH BUT DO NOT CONSTITUTE REPRESENTATIONS OF FACT OR FORM PART OF ANY OFFER OR CONTRACT. THE MATTERS REFERRED TO IN THESE PARTICULARS SHOULD BE INDEPENDENTLY VERIFIED BY PROSPECTIVE BUYERS OR TENANTS. NEITHER YORKSHIRES FINEST LIMITED NOR ANY OF ITS EMPLOYEES HAS ANY AUTHORITY TO MAKE OR GIVE ANY REPRESENTATION OR WARRANTY WHATEVER IN RELATION TO THIS PROPERTY.
Floorplan
To discuss this property call us:
Market your property
with Cornerstone Estate Agents
Book a market appraisal for your property today. Our virtual options are still available if you prefer.
Material Information
- Council Tax Band: D
- Tenure: Freehold
- All Others: Ask Agent